Эксперт+
ЗаботаСтроительство завершено - объект сдан в эксплуатацию.
Весной 2022 года в станице Гостагаевской стартовало строительство коттеджного посёлка "Центральный". Как следует из названия, КП расположен в центральной части населённого пункта, в районе улицы Трудящихся.
Посёлок небольшой - ввиду того, что это не окраина станицы, а давно сформировавшийся жилой массив. Здесь всего 15 участков. Площадь - от 5,5 до 12,6 соток. Разрешённое использование земли - для индивидуального жилищного строительства (ИЖС).
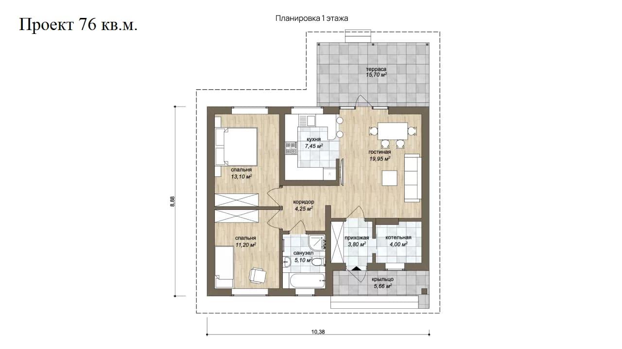
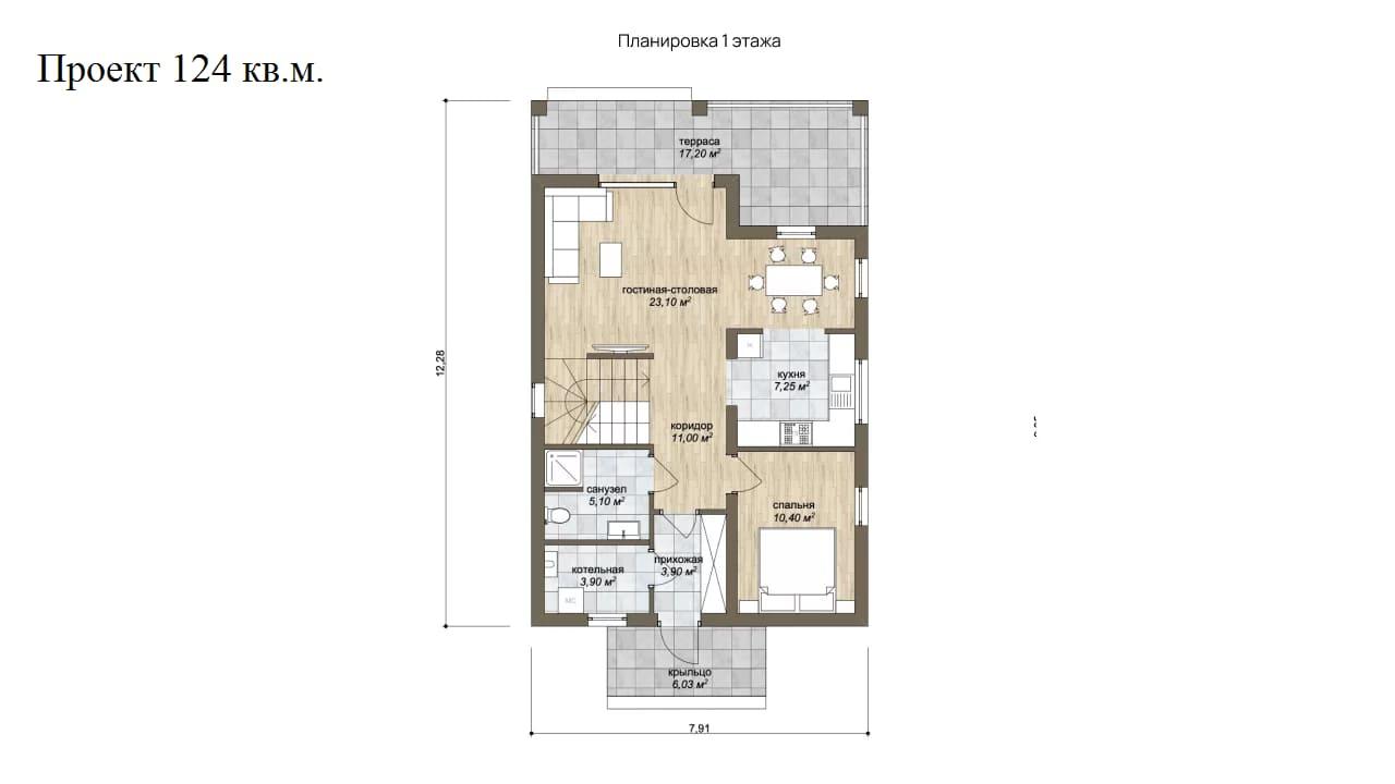
Застройщиком предлагается широкий выбор проектов коттеджей площадью от 76 до 190 кв.м., высотой в 1 и 2 этажа. С планировками можно ознакомиться в галерее в конце статьи.
Все дома будут выполнены в едином архитектурном стиле, что станет отличительным признаком на фоне окружающей застройки.
Конструктивные особенности:
Дома будут сдаваться в предчистовой отделке:
Впрочем, за дополнительную плату возможно дозаказать готовый ремонт от застройщика.
Коммуникации:
Благоустройство придомовой территории будет выполнено по согласованию с заказчиком (возможны варианты вплоть до ландшафтного дизайна). В базовом варианте предусмотрены забор по периметру участка, откатные ворота и калитка.
После завершения строительных работ в "Центральном" будет выполнено озеленение, на пешеходных зонах появятся тротуарная плитка, внутренние дороги покроют асфальтом.
Территорию КП застройщик не планирует делать закрытой. Тем не менее, заезд в посёлок представляет собой тупик с разворотной площадкой в конце. То есть транзитный транспорт сюда заезжать не будет.
На момент написания статьи (ноябрь 2022 года) в продаже оставалось 7 из 15 участков. Вот их стоимость:
Таким образом, цена за сотку составляет 300-350 тыс. руб.

Конечная стоимость дома зависит от площади участка, выбранного проекта, варианта внутренней отделки и степени благоустройства придомовой территории.
При покупке дома доступна возможность привлечения ипотеки и средств маткапитала. Также по индивидуальному согласованию предоставляется беспроцентная рассрочка.
Чтобы узнать актуальные цены на коттеджи, забронировать участок и записаться на просмотр, обращайтесь к нашим специалистам по загородной недвижимости по бесплатному телефону +7 (800) 350-30-39.
Гостагаевская является административным центром сельского округа. Численность населения станицы составляет около 16,5 тысяч человек. Здесь есть вся необходимая для повседневной жизни инфраструктура:
Таким образом, здесь нет дефицита в рабочих местах. Поэтому очень велики шансы трудоустроиться в пределах населённого пункта.

Станицу Гостагаевскую с Анапой соединяет асфальтированная дорога. Расстояние от КП "Центральный" до города - 23 км. Время в пути на личном автомобиле обычно занимает около получаса (в период высокого туристического сезона до двух раз дольше – прежде всего за счёт пробки на кольцевой развязке рядом с хутором Чембурка).
Кроме того, по этому маршруту курсирует общественный транспорт:
Ближайшая автобусная остановка находится в 200 метрах от коттеджного посёлка.
Из Гостагаевской удобно выезжать в сторону Краснодара, Крыма и Новороссийска (без необходимости заезда в Анапу). Трасса, которая проходит через станицу, не является федеральной. Следовательно, даже летом она не сильно загружена.
Гостагаевская имеет выгодное географическое положение в плане доступности моря:
Таким образом, у жителей станицы в целом и КП "Центральный" в частности есть возможность в течение дня выбраться в любом из этих направлений, отдохнуть на море и успеть вернуться обратно.
По всем вопросам касательно покупки недвижимости в коттеджных посёлках рядом с Анапой звоните по бесплатному телефону +7 (800) 350-30-39. Обращайтесь, мы будем рады вам помочь!