Top.Mail.Ru
Бесплатная консультация, первичная и вторичная недвижимость в Анапе
Для покупателей в новостройках услуги бесплатны
Получить выгодную ипотеку
Наши офисы
Ул. Маяковского, 161
Бесплатная консультация, первичная и вторичная недвижимость в Анапе
Получить выгодную ипотеку
Смотрите свежие обзоры о недвижимости на Ютуб-канале Андрея Ворсова
Скидки, акции, инсайдерская информация о застройщиках выгодных объектах и многое другое

дом площадью 130 кв.м на участке 8.00 сот, код - 19262

Краснодарский край, Гостагаевская ст-ца, Широкая ул, 2Н
Район: Анапа
88 462 р.
цена за кв. м
2
этажей в доме
Код - 19262
Комфортный сервис с Эксперт+
Если у вас нет времени заниматься вопросами недвижимости, то соберём все документы. Вам нужно лишь подписать договор онлайн, без приезда в офис
Подробнее
Выбирайте лучшее
Сохраняйте объект, которые вам приглянулся в "Избранное", чтобы не потерять его. Вдруг это и будет ваша будущая недвижимость
Подробнее
Ипотека легко!
Подберём для вас лучшие условия по ипотеке.
Наш опыт и возможности позволяют быстро
определить идеальные варианты.
Подробнее
С заботой о вас
Позаботимся о том, чтобы вы выбрали лучший
вариант, который будет радовать ваш всю жизнь.
Подробнее
Описание
Идеальное место для комфортной жизни
Представляем вашему вниманию великолепный кирпичный дом в одном из самых развитых населенных пунктов Анапского района — станице Гостагаевской. Удобное расположение всего в 15 км от центра Анапы делает этот объект особенно привлекательным для тех, кто ценит спокойствие загородной жизни с возможностью быстро добраться до городской инфраструктуры.

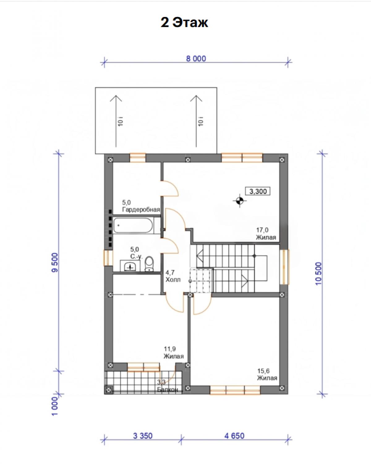
Планировка и особенности дома
Просторная жилплощадь включает в себя:
4 светлые и уютные спальни
Функциональную кухню-гостиную
Два современных санузла
Комфортную террасу для отдыха
Коммуникации и оснащение

Дом полностью подготовлен к комфортному проживанию:
Электричество — 15 кВт
Водоснабжение — централизованное
Канализация — современный биосептик
Газ — возможность быстрого подключения (трубы проходят рядом с участком)

Преимущества расположения
Развитая инфраструктура станицы включает:

Современные образовательные учреждения (школы, детский сад)
Магазины (в том числе «Пятёрочка»)
Удобную транспортную доступность (автобусная остановка рядом)

Готовность к заселению
Предчистовая отделка («белый ключ») включает:

Качественную стяжку полов
Выровненные стены

Подготовку под финишную отделку

Этот дом — идеальный выбор для тех, кто мечтает о собственном пространстве в экологически чистом районе с развитой инфраструктурой. Возможность воплотить собственные дизайнерские решения в предчистовой отделке делает предложение еще более привлекательным.

Не упустите шанс стать владельцем комфортного дома в одном из самых перспективных районов Анапского региона!
Получите больше информации, позвонив по номеру телефона +7 (800) 350-30-39 или пишите в WhatsApp по номеру +7 (988) 133-54-57. Звонок бесплатный!
Поделиться в соц.сетях
Записаться на просмотр
С вами свяжется специалист по недвижимости, подтвердит вы­бранное время просмотра, организует посещение предложения и проведёт вам экскурсию.
Пожалуйста, подтвердите, что вы не робот.
Блинова Ирина
Ваш личный консультант
+79994151928 Позвонить Задать вопрос