Top.Mail.Ru
Бесплатная консультация, первичная и вторичная недвижимость в Анапе
Для покупателей в новостройках услуги бесплатны
Получить выгодную ипотеку
Наши офисы
Ул. Маяковского, 161
Бесплатная консультация, первичная и вторичная недвижимость в Анапе
Получить выгодную ипотеку
Смотрите свежие обзоры о недвижимости на Ютуб-канале Андрея Ворсова
Скидки, акции, инсайдерская информация о застройщиках выгодных объектах и многое другое

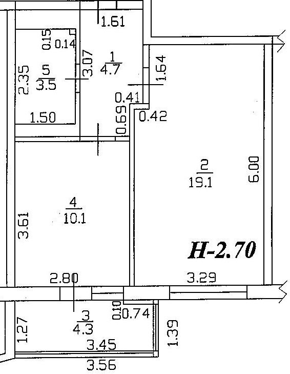
Однокомнатная квартира площадью 42 кв.м, этаж 7/16, код - 18857

Краснодарский край, Анапа, Солнечная ул, 255/2б
Район: Витязево
188 095 р.
цена за кв. м
19 кв. м
Жилая площадь
9.8 кв. м
Площадь кухни
16
этажей в доме
Код - 18857
Комфортный сервис с Эксперт+
Если у вас нет времени заниматься вопросами недвижимости, то соберём все документы. Вам нужно лишь подписать договор онлайн, без приезда в офис
Подробнее
Выбирайте лучшее
Сохраняйте объект, которые вам приглянулся в "Избранное", чтобы не потерять его. Вдруг это и будет ваша будущая недвижимость
Подробнее
Ипотека легко!
Подберём для вас лучшие условия по ипотеке.
Наш опыт и возможности позволяют быстро
определить идеальные варианты.
Подробнее
С заботой о вас
Позаботимся о том, чтобы вы выбрали лучший
вариант, который будет радовать ваш всю жизнь.
Подробнее
Описание
Однокомнатная квартира мечты: 37,4 (вместе с лоджией 42 кв.м.) квадратных метра счастья в 800 метрах от морского берега! Кухня-мечта: 10,1 квадратных метров с выходом на лоджию-малышку (всего 4,3 метра) и панорамными окнами, откуда открывается потрясающий вид на море. А ещё тут есть комната-мечта — целых 19 квадратных метров! Этаж мечты: квартира расположена на седьмом этаже шестнадцатиэтажного дома. Техника мечты: сплит-система установлена прямо в комнате. Санузел мечты: совмещённый, но такой маленький — всего 3,5 квадратных метра. Прихожая мечты: просторная! Мебель и техника мечты: частично присутствуют. Дом мечты: построен по монолитной технологии и сдан в эксплуатацию в 2010 году. Все коммуникации центральные, а во дворе есть детские и спортивные площадки, зоны отдыха и рядом аттракционы! Инфраструктура мечты: продуктовый магазин «Пятёрочка», множество кафе, медицинский центр, аптека и чистый песчаный пляж всего в 10 минутах ходьбы от дома. Показы мечты: возможны по предварительной записи или онлайн. Один собственник, все документы готовы к продаже. Вся сумма указана в договоре.
Получите больше информации, позвонив по номеру телефона +7 (800) 350-30-39 или пишите в WhatsApp по номеру +7 (988) 133-54-57. Звонок бесплатный!
Поделиться в соц.сетях
Записаться на просмотр
С вами свяжется специалист по недвижимости, подтвердит вы­бранное время просмотра, организует посещение предложения и проведёт вам экскурсию.
Пожалуйста, подтвердите, что вы не робот.
Сергеева Наталья Константиновна
Ваш личный консультант
+79994265601 Позвонить Задать вопрос