Top.Mail.Ru
Бесплатная консультация, первичная и вторичная недвижимость в Анапе
Для покупателей в новостройках услуги бесплатны
Получить выгодную ипотеку
Наши офисы
Ул. Маяковского, 161
Бесплатная консультация, первичная и вторичная недвижимость в Анапе
Получить выгодную ипотеку
Смотрите свежие обзоры о недвижимости на Ютуб-канале Андрея Ворсова
Скидки, акции, инсайдерская информация о застройщиках выгодных объектах и многое другое

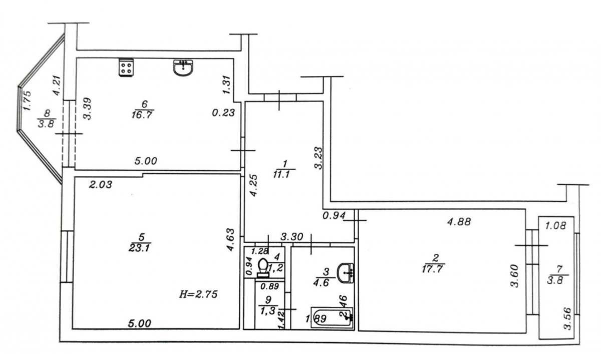
Двухкомнатная квартира площадью 83.3 кв.м, этаж 4/14, код - 18845

Краснодарский край, Анапа, Шевченко ул, 3
Район: Высокий берег
300 108 р.
цена за кв. м
40.8 кв. м
Жилая площадь
20.5 кв. м
Площадь кухни
14
этажей в доме
Лифт
Код - 18845
Комфортный сервис с Эксперт+
Если у вас нет времени заниматься вопросами недвижимости, то соберём все документы. Вам нужно лишь подписать договор онлайн, без приезда в офис
Подробнее
Выбирайте лучшее
Сохраняйте объект, которые вам приглянулся в "Избранное", чтобы не потерять его. Вдруг это и будет ваша будущая недвижимость
Подробнее
Ипотека легко!
Подберём для вас лучшие условия по ипотеке.
Наш опыт и возможности позволяют быстро
определить идеальные варианты.
Подробнее
С заботой о вас
Позаботимся о том, чтобы вы выбрали лучший
вариант, который будет радовать ваш всю жизнь.
Подробнее
Описание
Продается 2к квартира в ЖК Консул с великолепным дизайнерским ремонтом от именитой анапской компании! Квартира находится на 4-ом этаже 14-ти этажного дома. Общая площадь квартиры составляет 83,3 квадратных метров. В квартире имеется большая прихожая 11 м2. Самое большое достоинство любой квартиры, кухня-гостиная, площадью 20,5 м2. Полностью оборудованная всей необходимой техникой и мебелью. Большая комната имеет площадь 23 м2. В ней хочется проводить каждую секунду свободного времени! Дизайнерские элементы ремонта, приятная мебель, просторность комнаты, прекрасно этому способствует! Вторая комната имеет площадь 17.7 м2 с выходом на балкон. Спальня имеет приятные теплые оттенки, роскошная двуспальная кровать и встроенный шкаф идеально дополняют выдержанный стиль! Санузел раздельный, с уникальной особенностью! В санузле установлена как ванная, так и душевая! Для любителей как одного, так и другого! Также, установлен водонагреватель, вы никогда не останетесь без горячей воды. Весь пол в квартире с подогревом (где керамогранит), зонировано. В квартире установлены дорогие фильтры на воду. В доме центральные коммуникации. Дом сдан в 2023 году. Тип дома - монолит, кирпич. Придомовая территория отличная! Есть подземный паркинг (где есть в продаже машиноместо), детская площадка, спортивная площадка. В доме много коммерции, кофейня, пункты выдачи, продуктовый. В соседнем доме находится ресторан. . Инфраструктура района великолепно развитая. До сквера Гудовича буквально 2 минуты пешком! 500м пешком до моря. 400 метров до ближайшей школы, 700 метров до детского сада. До Южного рынка 2.5 километров, до Красной площади 3 км. Звоните и пишите в любое время, всегда на связи.
Получите больше информации, позвонив по номеру телефона +7 (800) 350-30-39 или пишите в WhatsApp по номеру +7 (988) 133-54-57. Звонок бесплатный!
Поделиться в соц.сетях
Записаться на просмотр
С вами свяжется специалист по недвижимости, подтвердит вы­бранное время просмотра, организует посещение предложения и проведёт вам экскурсию.
Пожалуйста, подтвердите, что вы не робот.
Колясникова Наталья
Ваш личный консультант
+79994151902 Позвонить Задать вопрос