Top.Mail.Ru
Бесплатная консультация, первичная и вторичная недвижимость в Анапе
Для покупателей в новостройках услуги бесплатны
Получить выгодную ипотеку
Наши офисы
Ул. Маяковского, 161
Бесплатная консультация, первичная и вторичная недвижимость в Анапе
Получить выгодную ипотеку
Смотрите свежие обзоры о недвижимости на Ютуб-канале Андрея Ворсова
Скидки, акции, инсайдерская информация о застройщиках выгодных объектах и многое другое
Ближайшие населенные пункты:
Натухаевская
Застройщик:
Частный инвестор
Варианты оплаты:
централизованная
15 кВт.
Электричество
Газ
в перспективе
Возможность прописки
да
30 км.
Удаленность от моря
биосептик
Канализация
25 км.
Удаленность от Анапы
25 км.
Удаленность от ж/д
38 км.
Удаленность от аэропорта
от 60 до 100 кв.м.
Дома
Описание

Общая информация

Возведение КП "Ключи" в южной части станицы Раевская (район ул. Сараны) началось в 2022 году.

Можно сказать, что здесь появится новый полноценный микрорайон станицы, т.к. общая площадь посёлка составляет около 20 га, он рассчитан на 250 земельных участков размером от 3,5 до 4,5 соток + парковая зона и территория под торговый центр. Разрешённое использование земли - для индивидуального жилищного строительства.

Коттеджи будут выполнены в едином архитектурном стиле, предполагающим одноэтажное исполнение и наличие террасы. На выбор заказчиков представлены 3 планировочных решения:

  • 60 кв.м. (7,5*10 м., 2 комнаты);
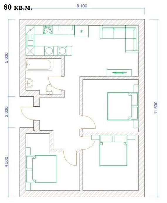
  • 80 кв.м. (8,5*11,5 м., 3 комнаты);
  • 100 кв.м. (10,5*12 м., 3 комнаты).

С планировками можно ознакомиться в фотогалерее в конце статьи.

Конструктивные характеристики коттеджей:

  • ленточный фундамент по технологии монолитного каркаса (1000*400 мм.);
  • материал стен - керамзитобетонный блок (200*200*400 мм.);
  • утеплитель - пеноплекс;
  • облицовка - керамический кирпич;
  • материал кровли - металлочерепица.

Базовая предчистовая отделка включает в себя:

  • механизированная стяжка пола;
  • финишная штукатурка стен;
  • разводка электрики до точек потребления;
  • установка радиаторов отопления;
  • монтаж системы водяных тёплых полов на кухне, в коридоре и санузле;
  • металлопластиковые окна;
  • утеплённая металлическая входная дверь.

Застройщик готов выполнить ремонт "под ключ" по согласованию с заказчиком. Также возможна индивидуальная корректировка проекта коттеджа, но с соблюдением общей концепции посёлка.

Коммуникации:

  • электричество (15 кВт.);
  • централизованное водоснабжение (из отдельного водозабора);
  • отопление - электрическое (с установкой электрокотла);
  • канализация - биосептик.

Каждый дом по оптоволоконному кабелю будет подключён к телефонной связи, интернету и цифровому ТВ.

Благоустройство придомового пространства предполагает установку забора из евроштакетника по периметру участка (по фасаду - с кирпичными колоннами в цвет дома, калиткой и воротами), забетонированную дорожку к дому и место под стоянку автомобиля.

Как и положено в коттеджных посёлках, на улицах будет выполнено озеленение и освещение. Следить за чистотой и порядком возьмётся собственная обслуживающая компания.

Территория посёлка будет закрытой для проезда постороннего транспорта. Предусмотрена круглосуточная охрана объекта и функционирование системы видеонаблюдения.

Строительство посёлка завершится в 2025 году.

Цены и условия покупки

Стоимость домов в КП "Ключи" по состоянию на июль 2023 года:

  • проект 60 кв.м. - от 4 800 000 рублей;
  • проект 80 кв.м. - от 5 300 000 рублей;
  • проект 100 кв.м. - от 5 800 000 рублей.

Цена зависит от площади участка и степени внутренней отделки коттеджа.

Способы оплаты:

  • 100%-ный единовременный платёж (при таком способе оплаты возможна индивидуальная скидка);
  • ипотека (доступны стандартные и льготные ипотечные программы);
  • военная ипотека;
  • маткапитал;
  • беспроцентная рассрочка (сроком на 6 месяцев при условии внесения первоначального взноса от 50%).

Аккредитованные банки: АК Барс, ВТБ, Газпромбанк, Открытие, Промсвязьбанк, Росбанк, Россельхозбанк, Сбербанк, Уралсиб.

За информацией об актуальных ценах и наличию свободных участков обращайтесь к нам по бесплатному телефону +7 (800) 350-30-39 или пишите в WhatsApp по номеру +7 (988) 133-54-57.

Мы не только организуем для вас просмотр (в т.ч. дистанционно) и забронируем понравившийся участок, но и обеспечим юридическую чистоту сделки и при необходимости поможем с оформлением ипотеки.

Инфраструктура

КП "Ключи" - это не только ряды домов за красивыми заборами. На территории посёлка планируется возвести торговый центр, обустроить парковую зону и спортивную площадку (для этих нужд уже выделены участки). Таким образом, магазины с товарами первой необходимости и места для проведения свободного времени будут находиться в шаговой доступности.

Да и сама станица Раевская не обделена объектами торговли и учреждениями социальной инфраструктуры. Согласно переписи населения 2021 года, здесь проживает около 16 тысячи человек, и с каждым годом численность жителей растёт - всё благодаря комфортным условиям проживания.

В Раевской функционируют 3 детских сада, 2 школы, поликлиника, отделение почты, банк, МФЦ "Мои документы", дом культуры, библиотека, детская школа искусств, спорткомплекс. Станица обеспечена продуктовыми и хозяйственными магазинами (в т.ч. "Магнит", "Магнит-Косметик", "Пятёрочка", "Fix Price"), пунктами выдачи маркетплейсов ("Ozon", "Wildberries" и "Яндекс.Маркет"), аптеками, салонами красоты, парикмахерскими, автомастерскими - словом, всем тем, что нужно в повседневной жизни.

Помимо удобства от того, что всё находится рядом и нет надобности лишний раз выбираться в город, развитость инфраструктуры станицы Раевской позволяет местным жителям найти работу в своём населённом пункте, что очень важно для сельской местности.

Транспортная доступность и близость к морю

Раевская удачно расположилась между промышленным Новороссийском и курортной Анапой. Это даёт возможность быстро добраться по делам в районный центр и съездить искупаться в море.

Федеральная автодорога А-290 "Новороссийск-Керчь" проходит в стороне от станицы, что избавляет ей жителей от круглосуточного шума проезжающего транспорта. В то же время, близость к выезду на трассу (8 км. от КП "Ключи") позволяет быстро выехать на большую дорогу и далее двигаться в нужном направлении (например, в Краснодар, Сочи или Крым).

Для тех, у кого нет личного автомобиля, действует автобусное сообщение с Новороссийском.

Что касается моря, то самый удобный путь пролегает через хутора Рассвет и Чембурка Анапского района (по объездной дороге, без необходимости посещения стоящей в пробках Анапы). Минуя кольцевую развязку на Симферопольском шоссе, вы окажетесь на Пионерском проспекте, рядом с дельфинарием "Немо". Расстояние от КП "Ключи" составляет 30 км.

Здесь к услугам отдыхающих и продуманная курортная инфраструктура, и широкие песчаные пляжи, растянувшиеся вдоль черноморского побережья от Анапы и далеко за горизонт, вплоть до Бугазской косы.

Более детально о жизни в коттеджных посёлках рядом с Анапой смогут рассказать наши менеджеры по загородной недвижимости. Для консультации с ними позвоните по бесплатному телефону +7 (800) 350-30-39 или напишите сообщение в WhatsApp по номеру +7 (988) 133-54-57. Обращайтесь, мы будем рады помочь вам переехать на юг!

КП "Ключи" на карте

Получите больше информации, позвонив по номеру телефона +7 (800) 350-30-39 или пишите в WhatsApp по номеру +7 (988) 133-54-57. Звонок бесплатный!
Поделиться в соц.сетях