Эксперт+
Забота«Эден Вилладж» – комфортабельный коттеджный посёлок в пригороде Анапы, в непосредственной близости от черноморского побережья.
КП «Эден Вилладж» (маркетинговое наименование – «Eden Village») располагается между Пятихатками и Витязево. Территория посёлка прилегает к улице Верхняя Дорога (дублёр Пионерского проспекта), в районе ЖК «Кавказ». Расстояние до моря – 1 км.
Общая площадь КП – чуть более 22 га. Земельные участки имеют размер от 6 до 13 соток, предназначены под ИЖС.

Застройщик планирует построить 238 коттеджей по четырём типовым проектам:
Все коттеджи будут выполнены в едином «средиземноморском» архитектурном стиле:
В строительстве применяется монолитно-каркасная технология с заполнением стен керамзитобетонными блоками (320 мм.). Межкомнатные перегородки - керамзитобетонный блок (120 мм.). Утеплитель - минеральная вата (80 мм.). Облицовка фасада - керамогранитная плитка и декоративная штукатурка.
Дома будут передаваться собственникам в предчистовой отделке.
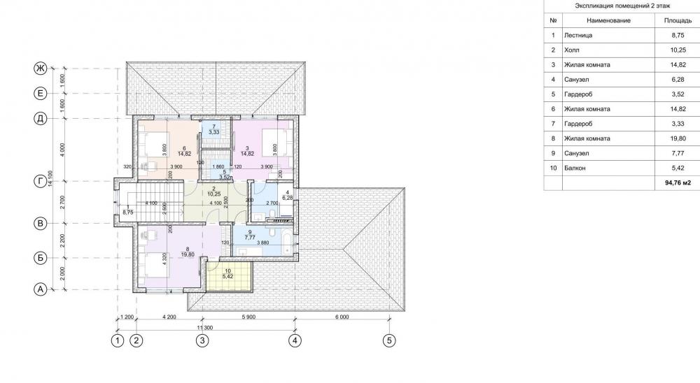
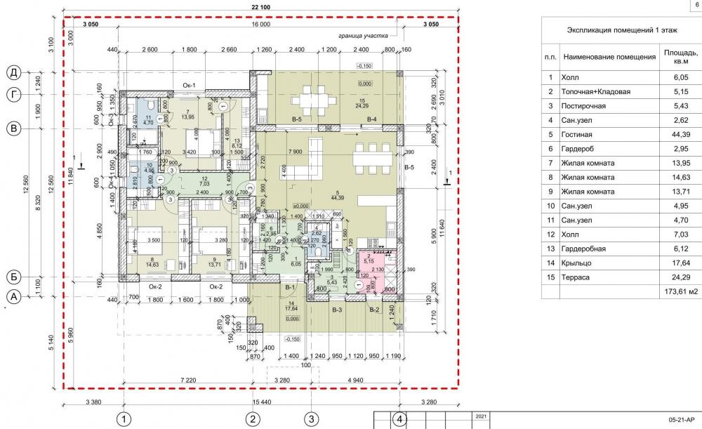
Планировки коттеджей предусматривают наличие просторной кухни-столовой с выходом на террасу, спальни с гардеробной и выходом на балкон, функциональные подсобные помещения (с функцией кладовки и постирочной). В двухэтажных коттеджах будет оборудована сауна с комнатой отдыха.
Коммуникации:
Придомовая территория будет огорожена, озеленена и частично выложена брусчаткой. Во дворе найдётся место для парковку двух легковых автомобилей.
Внутренние дороги в КП «Эден Вилладж» будут заасфальтированы, по обочинам высажены кустарники.
В центральной части посёлка расположится благоустроенный парк площадью 0,5 га. Здесь разместятся детские и игровые площадки, воркаут-зоны, оборудованы места для отдыха.
КП «Эден Вилладж» будет сдаваться в эксплуатацию поэтапно в течении 2022-2024 гг.
Стоимость коттеджей вместе с земельными участками в «Эден Вилладж» составляет от 18 до 35 миллионов рублей (в зависимости от площади участка и выбранного проекта дома).
Наличный и безналичный расчёт. Доступно привлечение ипотечных средств. Имеется возможность проведения дистанционной сделки.
Застройщик предоставляет беспроцентную рассрочку сроком до 12 месяцев (при условии первоначального взноса от 50%).
Более подробную и актуальную информацию по КП «Эден» уточняйте по бесплатному телефону +7 (800) 350-30-39.
Также советую обращаться к нам, если вас беспокоят последствия приобретения недвижимости рядом с морем в связи с принятием нового генплана Анапы. Мы консультируем и по этому вопросу.

Расстояние между КП «Эден Вилладж» и Анапой – около 10 км. Бо́льшую часть пути предстоит проехать по широкому Симферопольскому шоссе. Время в дороге на личном автомобиле составит от 10 до 30 минут (в зависимости от сезона).
Альтернативный вариант – проехать по Пионерскому проспекту, но летом здесь очень тесно и поэтому не факт, что получится быстрее.
Здесь же по проспекту курсирует общественный транспорт – автобусные маршруты №№114 и 128, соединяющие Анапу и Витязево. От границы посёлка до остановки придётся пройти 600 метров.
КП «Эден Вилладж» располагается неподалёку от удобной транспортной развязки. Я имею в виду выезд на Симферопольское шоссе, до которого 3,5 км. Отсюда по федеральной трассе можно без заезда в город уехать по наиболее востребованным направлениям – Новороссийск, Краснодар, Крым, Темрюк и азовское побережье. Вдоль этой же трассы расположены ж/д вокзал и аэропорт.
Ближайшая необходимая социальная инфраструктура для жителей КП «Эден Вилладж» располагается в Витязево.
Детский сад, школа, поликлиника, отделение почты, банк, мелкие и сетевые магазины, аптеки, рынок, салоны бытовых услуг, СТО и многое другое – всё это находится в курортном анапском пригороде.
Если до ближайшей «Пятёрочки» ещё можно пройтись пешком, то добраться до всего остального без личного автомобиля или такси будет сложно (расстояние составляет 3-5 км.).
Частично ваши потребности сможет удовлетворить инфраструктура близлежащего ЖК «Кавказ»:

Кроме того, летом при апарт-отеле «Кавказ» функционируют мини-аквапарк и бассейн. Рядом идёт строительство лечебно-оздоровительного комплекса.
Вот мы с вами постепенно подобрались к теме Пионерского проспекта – главной курортной артерии Анапы.
Конечно, всё, что здесь находится, рассчитано главным образом на отдыхающих. Но почему бы всем этим не воспользоваться местным жителям?
Помимо многочисленных отелей и гостиниц, здесь в большом количестве представлены столовые, кафе и бары, множество магазинчиков, а также салоны косметологических и медицинских услуг, аттракционы, бассейны и, наконец, Дельфинарий.
По Пионерскому проспекту можно гулять далеко и долго, наслаждаясь курортной «движухой» и одновременно вдыхая ароматы сосен и моря.
Именно море и шаговая доступность к нему – главное преимущество жизни в КП «Эден Вилладж».
Если вас заинтересовала перспектива переезда в «Эден Вилладж» или любой другой коттеджный посёлок рядом с Анапой, звоните по бесплатному телефону +7 (800) 350-30-39 и записывайтесь ко мне на консультацию. Обязательно выберем наиболее подходящий для вас вариант!