Эксперт+
ЗаботаСтроительство завершено - коттеджный поселок сдан в эксплуатацию.
КП «Дрим Вилладж» (маркетинговое наименование – «Dream Village») располагается на восточной окраине станицы Анапской, в районе пересечения улиц Александра Каширина и Ереванской.
Общая площадь посёлка составляет 5,5 га. На этой территории будет построено 102 коттеджа. Все земельные участки имеют приблизительно равный размер – 4,5 сотки, с местом для парковки автомобиля. Назначение земли – ИЖС.
Кроме того, в центре посёлка запланировано обустройство парковой зоны с детскими и спортивными площадками, беседками и скамейками (площадь парка – 1542 кв.м.). Также на окраине КП будет выделен участок технического назначения – под тепловой пункт, канализационную насосную станцию и место сбора твёрдых бытовых отходов.

Дороги в «Дрим Вилладж» будут достаточно широкими (расстояние между домами вдоль улицы составит 12 метров) и покрыты асфальтом. Предусмотрено освещение и озеленение улиц.
Дома будут выполнены в едином архитектурном стиле, что характерно для коттеджных посёлков. Застройщиком предлагается лишь один типовой проект – двухэтажный коттедж площадью 137 кв.м.
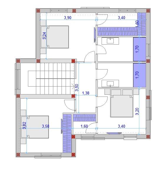
Согласно проекту, на первом этаже находятся:
На втором этаже:
Высота потолков – 3,1 м.

Коттеджи будут сдаваться с готовым ремонтом:
Коммуникации: электричество (15 кВт.), газ, централизованные водоснабжение и канализация. Будут подключены проводные интернет и ТВ.
Дворовая территория будет огорожена и озеленена, частично выложена брусчаткой. По периметру участка будет забор с калиткой и откатными воротами. Во дворе найдётся место для парковки двух легковых автомобилей.
Планируемый срок реализации проекта – середина 2023 года.
По состоянию на конец 2021 года стоимость дома с земельным участком в КП «Дрим Вилладж» составляет 12 700 000 рублей (стоимость дома - 75 000 руб./кв.м., стоимость земельного участка - 670 000 руб./сот.).
Доступен наличный и безналичный расчёт. Предоставляется услуга заключения дистанционной сделки.
Если не хватает средств купить коттедж сразу за полную стоимость, можно воспользоваться ипотекой или рассрочкой. Рассрочка беспроцентная, предоставляется на условиях внесения первоначального взноса в размере не менее 50%, остальная часть – равными частями в течении 12 месяцев.
За наиболее актуальной информацией по ценам и вариантам коттеджей в КП «Дрим Вилладж» обращайтесь по бесплатному телефону +7 (800) 350-30-39.
В распоряжении жителей КП «Дрим Вилладж» вся инфраструктура станицы Анапской – ближайшего и, пожалуй, самого развитого пригорода Анапы.
Детские сады, школа, амбулатория, станция скорой помощи, банк, отделение почты, сетевые магазины, рынки, аптеки... Перечислять придётся долго, но всё равно найдётся ещё что-нибудь, о чём забыл упомянуть. То, чего нет в Анапской, найдётся в соседней Анапе.
Отмечу лишь тот факт, что в полутора километрах от посёлка располагается недавно благоустроенный Парк 70-летия Победы – место занятия спортом и отдыха жителей станицы.

Рядом с Парком находятся два детских сада, общеобразовательная и спортивная школы. Таким образом, большую часть времени юные жители КП «Дрим Вилладж» будут проводить практически в шаговой доступности от дома.
Развитая инфраструктура предполагает широкий выбор вариантов для трудоустройства. Строительство, отделка, бытовые услуги, торговля, общепит, сельское хозяйство – вот далеко не полный список сфер, где можно найти работу в станице Анапской.
Коттеджный посёлок «Дрим Вилладж» расположен неподалёку от улицы Мира, которая является центральной в станице. Расстояние от границы КП до перекрёстка улиц Мира и Ереванской составляет 450 метров.
Здесь же находится автобусная остановка. Маршрут №111 соединяет Анапу и хутор Усатова Балка. На автобусе можно без пересадок добраться до:
Между КП «Дрим Вилладж» и Анапой – 5 км. Время в пути на личном автомобиле занимает 10-20 минут (в зависимости от пробок).
Большое преимущество посёлка – близость к выезду на федеральную трассу А-290 «Новороссийск-Керчь» (4 км.). Это позволяет быстро, минуя город, выехать в любом из нужных направлений – будь то Новороссийск, Краснодар или Крым.
Также этой дорогой я советую добираться до моря. Летом это будет гораздо быстрее, чем через Анапу. Объездная дорога выведет вас на хутор Чембурку, откуда уже недалеко до широких песчаных пляжей вдоль Пионерского проспекта. Расстояние, которое придётся преодолеть, – 12,5 км.
Если вы предпочитаете галечный пляж, то добро пожаловать на Варваровскую щель. В этом случае путь через Бужор, Гай-Кодзор и Варваровку составит 23 км.
Считаю, что посёлок имеет удачное месторасположение – как с точки зрения транспортной доступности, так и с точки зрения близости самых необходимых объектов инфраструктуры.
Чтобы подробнее узнать о КП «Дрим Вилладж» и других коттеджных посёлках рядом с Анапой – обращайтесь по бесплатному телефону +7 (800) 350-30-39. Будем рады помочь вам найти дом на юге.