Top.Mail.Ru
Бесплатная консультация, первичная и вторичная недвижимость в Анапе
Для покупателей в новостройках услуги бесплатны
Получить выгодную ипотеку
Наши офисы
Ул. Маяковского, 161
Бесплатная консультация, первичная и вторичная недвижимость в Анапе
Получить выгодную ипотеку
Смотрите свежие обзоры о недвижимости на Ютуб-канале Андрея Ворсова
Скидки, акции, инсайдерская информация о застройщиках выгодных объектах и многое другое

дом площадью 93.6 кв.м на участке 5.00 сот, код - 18909

Краснодарский край, Гостагаевская ст-ца
Район: Гостагаевская
104 167 р.
цена за кв. м
1
этажей в доме
Код - 18909
Комфортный сервис с Эксперт+
Если у вас нет времени заниматься вопросами недвижимости, то соберём все документы. Вам нужно лишь подписать договор онлайн, без приезда в офис
Подробнее
Выбирайте лучшее
Сохраняйте объект, которые вам приглянулся в "Избранное", чтобы не потерять его. Вдруг это и будет ваша будущая недвижимость
Подробнее
Ипотека легко!
Подберём для вас лучшие условия по ипотеке.
Наш опыт и возможности позволяют быстро
определить идеальные варианты.
Подробнее
С заботой о вас
Позаботимся о том, чтобы вы выбрали лучший
вариант, который будет радовать ваш всю жизнь.
Подробнее
Описание
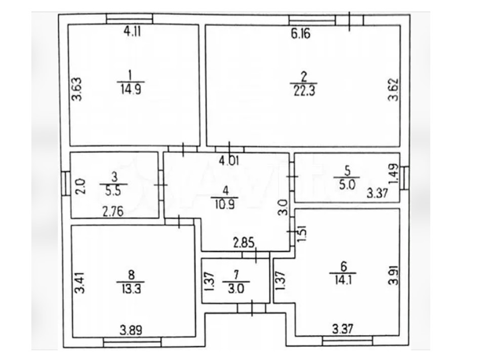
В продаже уютный, светлый кирпичный дом в живописном месте, площадью 93,6 м.кв. на участке 5 сот. – «ПОД КЛЮЧ»! В станице Гостагаевская развита инфраструктура. От дома в пешей доступности до 15 мин. - центр станицы, школа, садик, почтовое отделение, поликлиника, амбулатория, спортивная школа, школа искусств, дворец культуры, замечательный парк с детскими площадками и спортивными тренажерами, футбольное поле, сетевые магазины, остановка общественного транспорта (до Анапских песочных пляжей - 16 км). В доме 3 спальни, просторная кухня-гостиная с выходом на террасу, личный участок и видом на лес, холл, коридор с нишей под гардероб, санузел, техническая комната (котельная). Земельный участок 5 соток - ИЖС. Фасад – 20 метров. Установлен металлический забор из штакетника с калиткой и воротами. Вокруг частная жилая застройка и много зелени. Коммуникации: вода скважина (25 м.) – заведена в дом (центральное водоснабжение по границе участка), газ, септик (ЖБ-кольца), электричество 15 кВт с разводкой по дому (продумана каждая розетка). Отопление дома: водяное, теплый пол (в прихожей, кухне-гостиной и санузле), в спальнях – алюминиевые радиаторы. Дом построен из качественных материалов, есть поэтапный фотоотчет. Один взрослый собственник, без обременений и ограничений. Дом готов к продаже. Возможна обычная ипотека от Сбербанка. Звоните и пишите, я отвечу на ваши вопросы и организую просмотр дома.
Получите больше информации, позвонив по номеру телефона +7 (800) 350-30-39 или пишите в WhatsApp по номеру +7 (988) 133-54-57. Звонок бесплатный!
Поделиться в соц.сетях
Записаться на просмотр
С вами свяжется специалист по недвижимости, подтвердит вы­бранное время просмотра, организует посещение предложения и проведёт вам экскурсию.
Пожалуйста, подтвердите, что вы не робот.
Гомозов Александр
Ваш личный консультант
+79385214780 Позвонить Задать вопрос