Top.Mail.Ru
Бесплатная консультация, первичная и вторичная недвижимость в Анапе
Для покупателей в новостройках услуги бесплатны
Получить выгодную ипотеку
Наши офисы
Ул. Маяковского, 161
Бесплатная консультация, первичная и вторичная недвижимость в Анапе
Получить выгодную ипотеку
Смотрите свежие обзоры о недвижимости на Ютуб-канале Андрея Ворсова
Скидки, акции, инсайдерская информация о застройщиках выгодных объектах и многое другое

Проспект 82

Информация обновлялась: 07.03.2026
Количество просмотров: 2 020
Характеристики:
Описание

В центре Евпатории на проспекте Ленина ведется строительство многофункционального жилого комплекса "Проспект 82" от застройщика СЗ "ЗАПАДНЫЙ ПРОСПЕКТ 82". Проект позиционируется как комплекс бизнес-класса, рассчитанный на тех, кто ценит статус и комфорт.

Размещение

Жилой комплекс разместится на земельном участке в центре города на перекрёстке проспект Ленина и ул. шевченко. Строительный адрес не присвоен.

Параметры застройки

На этой территории планируется возвести 3 башни высотой 23 этажа, объединенные общим стилобатом с внутренней инфраструктурой. Общее количество квартир - 779.

Паркинг

По проекту комплекс обеспечен парковочными местами в соответствии с городскими стандартами. Проектом предусмотрены подземная парковка на 193 места, а также гостевая парковка вне придомовой территории на 114 мест. Всего в ЖК "Проспект 82" будет 307 оборудованных машино-мест. Обеспеченность машиноместами составляет 25%.

Коммерческие помещения

Первые этажи оборудуют под коммерческие помещения. В комплексе предусмотрено 265 нежилых помещений общей площадью от 4 до 2 187 м². В рамках проекта откроются: детский культурный центр, торговая галерея, кафе, магазины и гастрономические заведения, а также торговый комплекс с бутиками.

Придомовое пространство

Всё придомовое пространство будет обустроено с учётом интересов маломобильных групп населения. Предусмотрены понижающие площадки. Пандусы и инвалидные подъемники в проекте не предусмотрены.

Во дворе разместятся места для отдыха со скамейками, детские и спортивные площадки. На территории жилого комплекса предусмотрены 2 детские площадки и 2 спортивные площадки, а также зоны отдыха для взрослых. По периметру будут сделаны различные спортивные площадки с безопасным покрытием, места для занятий йогой и воркаут-зона. Также предусмотрены велосипедные дорожки и 3 площадки для сбора мусора.

Территория комплекса будет закрытой, установят видеонаблюдение 24/7. Будут реализованы умные системы безопасности с приватной территорией и оборудованными парковочными местами.

Для удобства собственников на территории будут установлены зарядные станции для электрокаров.

Срок ввода в эксплуатацию

Строительство ЖК "Проспект 82" осуществляется в соответствии с 214-ФЗ, с применением эскроу-счетов. Срок ввода комплекса в эксплуатацию - 4 квартал 2028 года. Выдача ключей планируется на 30.06.2029.

Цены

Цены по состоянию на июль 2025 года: средняя цена за 1 м² составляет 195 000 рублей.

Визуализация проекта
Условия покупки

Комплекс прошел аккредитацию в крупнейших банках России и Крыма. Вы можете выбрать удобный способ покупки:

  1. Ипотека от банков-партнеров - Сформируем ипотечную заявку в банки и получим решение в течение нескольких дней
     

  2. Рассрочка от застройщика - первоначальный взнос 30% без удорожания на 30 месяцев. Погашение раз в месяц/квартал

  3. Скидки!
    при ПВ от 51% скидка 5000 с м2
    При полной оплате - 10 000 с м2 (в том числе, ипотечные сделки)

Получить помощь в сборе необходимого пакета документов для оформления сделки и информацию о самых выгодных ставках можно позвонив по бесплатному телефону +7 (800) 350-30-39 или написать в WhatsApp на номер +7 (988) 133-54-57.

 

По всем вопросам, касающимся приобретения недвижимости в Проспект 82, обращайтесь по бесплатному телефону +7 (800) 350-30-39 или пишите в WhatsApp/MAX по номеру +7 (988) 133-54-57.
Архитектурные особенности

ЖК "Проспект 82" - это комплекс из 3 одноподъездных башен высотой 23 этажа, объединенных общим стилобатом. Тип дома - блочный. Материал стен - блоки. Класс энергоэффективности здания - B.

Архитектурное исполнение

Архитектурное исполнение комплекса выполнено в современном стиле с панорамным остеклением. Будет сделана подсветка фасадов.

Входные группы

Особое внимание застройщик уделил оформлению входных групп. Комфорт в деталях: от лаконичных мраморных холлов до умных систем безопасности. Используются натуральные материалы отделки и актуальные дизайнерские решения.

Размещение квартир

В зависимости от секции, на этаже разместиться от 2 до 12 квартир. Среднее количество квартир на этаже - 12. Всего в комплексе 779 квартир:

  • Студии: 380 квартир (от 27 до 53 м²)

  • 1-комнатные: 261 квартира (от 38 до 68 м²)

  • 2-комнатные: 116 квартир (от 56 до 94 м²)

  • 3-комнатные: 21 квартира (от 84 до 113 м²)

  • 4+ комнатные: 1 квартира (от 298 до 298 м²)

Высота потолков

Высота потолков - от 2,85 до 3,3 метра.

Лифты

В каждом подъезде установлены лифты. Общее количество пассажирских лифтов - 11, количество грузовых лифтов - 1. Лифты оснащены системой аварийного доведения до этажа и камерами видеонаблюдения.

Конструктивные и технические особенности

В строительстве ЖК "Проспект 82" применяется монолитно-каркасная технология. Материалы строительства - бетон, керамзит, стекло.

В фасаде предусмотрены специальные места для размещения кондиционеров, с заведением точек подключения в квартиры. 

Значительную часть фасада зданий займёт панорамное остекление. Это придаст жилому комплексу стильный современный вид.

В квартирах будет выполнена предчистовая отделка

В жилом комплексе предусмотрены центральные коммуникации. Отопление от собственной котельной.

В квартиры будут заведены проводные интернет, ТВ и видеодомофон.

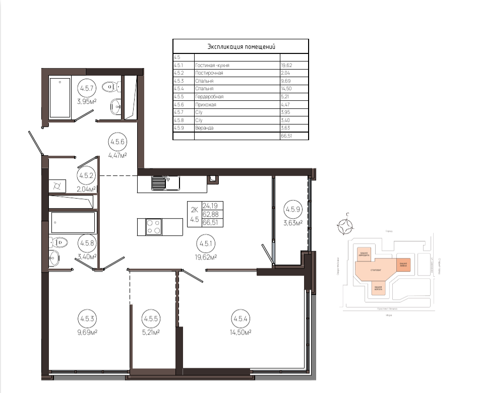
Планировки ЖК Проспект 82
Коммуникации

Все коммуникации центральные

 

Информация о застройщике/инвесторе/подрядчике

Строительство ЖК "Проспект 82" осуществляет ООО "СЗ ЗАПАДНЫЙ ПРОСПЕКТ 82" (ИНН 9109026814).  Регистрация от 21 октября 2021 г. Уставный капитал - 1 500 000 руб.

Юридический адрес : 295000, Республика Крым, г Симферополь, Екатерининская ул, д. 28/10, кабинет 23 

Руководитель. Директор Решитов Алим Меметович, с 22 августа 2024 г.

Об участии в других проектах ничего не известно.

Генподрядчик - ООО "КРЫМСТРОЙИНДАСТРИАЛ" (ИНН: 9102007202).

Разрешительная документация

Разрешительная и строительная документация на ЖК "Проспект 82":

  • Проектная декларация №91-000663 от 02.07.2025

Сэкономьте время — закажите
консультацию специалиста
Ваши данные останутся в безопасности. Заполнение формы ни к чему вас не обязывает.
Пожалуйста, подтвердите, что вы не робот.
Инфраструктура

Жилой комплекс расположен в центральном районе Евпатории рядом со строящимися апатаментами ЖК Центральный. Рядом удобная транспортная развязка и близость к инфраструктуре. В шаговой доступности магазины, кафе, школы, детские сады и парки. До ближайших пляжей около 15 минут пешком!

Выбранное место для строительства комплекса предоставляет его резидентам возможность наслаждаться всеми благами курортной инфраструктуры. В то же время, рядом есть все необходимые для комфортной жизни социально-бытовые и развлекательные учреждения.

Расстояния до крупных городов:

  • 170 км до Ялты

  • 90 км до Симферополя

  • 116 км до Севастополя

Управление и сервис

Комплекс представляет собой инвестиционно привлекательный объект с элитными квартирами для постоянного проживания, получения пассивного дохода и прибыли при перепродаже.

Застройщик обещает профессиональную управляющую компанию, которая обеспечит сервис высокого уровня и безупречное обслуживание, но пока название управляющей компании не разглашается. Сервисная компания займется улучшением репутационных показателей жилого комплекса, будет повышать уровень удовлетворённости гостей, а также проследит за состоянием вашей недвижимости и придомовой территории.

Предусмотрены:

  • Консьерж-служба 24/7

  • Функция доверительного управления

  • Услуги по реализации квартир и сдачи их в аренду

  • Предоставление отчетности

Управляющая компания обеспечит ежемесячный доход без Вашего непосредственного участия.

Брать или нет?

Удобная локация и современное наполнение проекта гарантируют стабильный спрос на квартиры как среди местного населения, так и среди тех, кто рассматривает Крым для пмж или инвестиций. Комплекс подходит для покупки рентабельных лотов с целью получения дохода от сдачи в аренду или последующей перепродажи. Помещения имеют статус квартир, что немаловажно в связи с нововведениями в правилах гостевого бизнеса.

Считаю, что главным конечным покупателем этой стройки станут обеспеченные люди из регионов, желающие иметь квартиру у моря с песчаными пляжами в Крыму. Десять лет работы нашего агентства позволяют судить о том, что комплекс несомненно будет востребован, несмотря на грядущий избыток предложений в Евпатории.

Главными отличиями от многих конкурентов является сформированная внутренняя и внешняя инфраструктура, расположение в центре города, рядом с удобными развязками, рынками, магазинами, социальной инфраструктурой, а также современный привлекательный внешний вид зданий. Если, как утверждает застройщик, к управлению вашим имуществом будет действительно привлечена опытная управляющая компания, то инвестиции в этот объект будут оправданы.

Поделиться в соц.сетях
Скидки и акции от застройщика
Пожалуйста, подтвердите, что вы не робот.
Смотрите
свежие обзоры
о недвижимости на Ютуб-канале Андрея Ворсова
Скидки, акции, инсайдерская информация о застройщиках, выгодных объектах и многое другое