Эксперт+
ЗаботаКоттеджный посёлок "Винная деревня" - это масштабный проект индивидуального жилищного строительства на побережье Азовского моря. Месторасположение - западная окраина станицы Тамань (ул. Мускатная).
Посёлок состоит из 3-х очередей строительства: I очередь сдана в эксплуатацию летом 2022 года и заселена, II и III очереди - на этапе реализации. Застройщик КП "Винная деревня" - ИП Швец Галина Ивановна (ИНН 235202560464).
Земельные участки размежёваны и имеют вид разрешённого использования "ИЖС". Площадь участков - от 2,5 до 10 соток. На выбор покупателей представлено более десятка проектов коттеджей площадью от 63 до 200 кв.м.
Срок строительства дома - от 4 до 8 месяцев. Срок гарантийного обслуживания - 5 лет.
Конструктивные характеристики домов:

По желанию можно выбрать дом в предчистовой отделке, либо с готовым ремонтом от застройщика.
В предчистовую отделку входит:
В чистовую отделку входит:
Коммуникации:
Благоустройство придомовой территории:
В озеленении территории посёлка использованы можжевельник, сосна, берёза, вишня, тополь, яблоня, розмарин, лаванда и др.
Стоимость домов в КП "Винная деревня" по состоянию на апрель 2024 года:
Застройщик выделил несколько кварталов для застройки коттеджами в средиземноморском стиле:
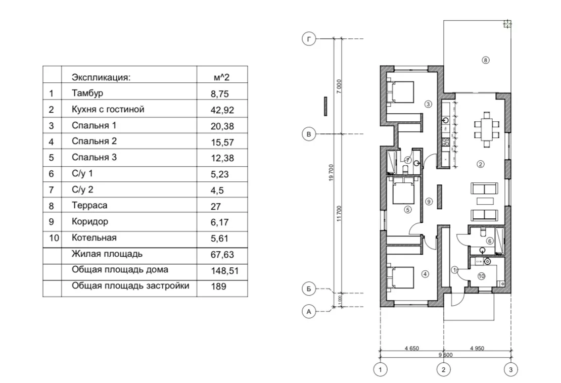
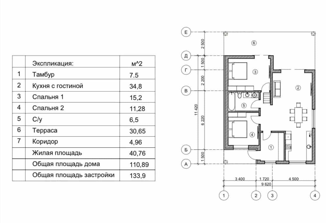
С проектами домов можно ознакомиться в галерее в конце статьи.
Способы оплаты:
Так как цены пребывают в постоянном движении, обращайтесь к нам, чтобы узнать актуальную стоимость на текущую дату и забронировать участок. Мы готовы организовать для вас экскурсию к месту строительства посёлка (в т.ч. дистанционно, с помощью видео-трансляции через интернет).
Звоните нашим специалистам по загородной недвижимости по бесплатному телефону +7 (800) 350-30-39 или пишите сообщение в WhatsApp по номеру +7 (988) 133-54-57. Гарантируем юридическую чистоту сделки и при необходимости поможем с одобрением ипотечного кредита.
КП "Винная деревня" имеет продуманную внутреннюю инфраструктуру:

Все важные объекты социальной инфраструктуры находятся в центральной части Тамани (расстояние от КП "Винная деревня" до центра станицы составляет менее 4-х км.).
Инфраструктура Тамани:
Тамань - административный центр МО "Таманское сельское поселение", поэтому здесь есть местная администрация, что очень удобно. Всего в станице проживает около 11 000 человек (данные переписи населения 2021 года). Вполне комфортный населённый пункт для ПМЖ.
Немаловажную роль в экономике Тамани играет туристическая отрасль. Сюда, на побережье Таманского залива, приезжают отдыхающие со всей страны. Таманский полуостров знаменит своими лиманами и грязевыми вулканами. Грязь, добываемая там, обладает целебными свойствами, помогая в лечении заболеваний суставов и кожи.
Думаю, многие слышали про этнопарк "Атамань" - это историко-культурный музей под открытым небом, занимающий площадь 60 гектаров и посвящённый быту кубанского казачества. КП "Винная деревня" строится на расстоянии 1,5 от "Атамани".
Наконец, Тамань - один из крупнейших центров виноделия Краснодарского края. На территории и в окрестностях станицы функционируют несколько профильных производств.
Таким образом, всё, что нужно для комфортной повседневной жизни, рядом с КП "Винная деревня" имеется. Это важно для тех, кто приобретает здесь недвижимость с прицелом на дальнейшее трудоустройство неподалёку от места жительства. В Тамани и на Таманском полуострове работы много: в таких сферах, как туризм, сельское хозяйство, виноделие, судоходство, торговля, транспорт и др., рабочие руки востребованы всегда!
Видеообзор КП "Винная деревня":
Географически "Винная деревня" находится между Таманью и Крымским мостом. Выезд на автодорогу А-290 "Новороссийск-Керчь" - в 5 км. от посёлка. То, что крупная федеральная трасса пролегает на некотором удалении, - это плюс, ведь вам не придётся слышать постоянный шум от транзитного транспорта и вдыхать выхлопные газы вперемешку с дорожной пылью.
Такая высокая транспортная доступность позволяет комфортно выезжать по направлению Крыма, Темрюка, Краснодара, Новороссийска, Анапы и т.д.
Что касается близости к морю, то месторасположение КП "Винная деревня" позволяет его жителям попеременно отдыхать на побережье Азовского и Чёрного морей. И это можно сделать даже в течение одного дня! Расстояние от КП до Азовского моря в пределах шаговой доступности - 1,5 км., до Чёрного моря чуть дальше - 13 км. (посёлок Волна).
Можно долго рассказывать об особенностях Таманского полуострова и преимуществах жизни рядом с морем, но будет лучше, если вы приедете и увидите всё сами. Мы, в свою очередь, готовы встретить вас, предоставить всю необходимую информацию и гарантировать юридическую чистоту сделки.
Для записи на консультацию звоните по бесплатному телефону +7 (800) 350-30-39 или пишите в WhatsApp по номеру +7 (988) 133-54-57. Обращайтесь, с нами ваша мечта переехать жить на юг обязательно осуществится!