Top.Mail.Ru
Бесплатная консультация, первичная и вторичная недвижимость в Анапе
Для покупателей в новостройках услуги бесплатны
Получить выгодную ипотеку
Наши офисы
Ул. Маяковского, 161
Бесплатная консультация, первичная и вторичная недвижимость в Анапе
Получить выгодную ипотеку
Смотрите свежие обзоры о недвижимости на Ютуб-канале Андрея Ворсова
Скидки, акции, инсайдерская информация о застройщиках выгодных объектах и многое другое
Ближайшие населенные пункты:
Анапа, Джигинка, Гостагаевская, Славянск на Кубани, Темрюк, Крымск
Застройщик:
ООО «АртСтройКомпани»
Варианты оплаты:
Вид отделки
предчистовая
скважина
15 кВт
Электричество
Газ
проходит по улице (подземный), подводится к участку
Возможность прописки
есть
35 км
Удаленность от моря
септик
Канализация
35 км
Удаленность от Анапы
35 км
Удаленность от ж/д
40 км
Удаленность от аэропорта
от 90 до 110 кв.м
Дома
Описание

Общая информация

Коттеджный поселок "Изумрудный" — проект строительной компании «АртСтройКомпани». Компания более 10 лет специализируется на строительстве частных домов и коттеджей. Ранее они назывались «Регионстрой-23».

КП расположен в 40 км от Анапы — в станице Варениковской с развитой инфраструктурой. Локация удачная с точки зрения близости к Черному и Азовскому морю, транспортной доступности, климатических особенностей. 

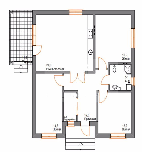
К продаже предлагаются участки 6 соток с коттеджами разных планировок. В каждом доме есть терраса, по фасадной части установлены кирпичные колонны в цвет дома. Территория позволяет разместить на участке зоны отдыха, баню, гараж или высадить сад. 

Застройщик предусмотрел бетонированные заезды для автомобилей, дорожки и отмостки по периметру дома. Каждый участок будет огорожен забором, предполагается установка откатных ворот, калитки, проведение уличного освещения на террасе и крыльце. 

Коттеджи сдаются в предчистовой отделке с проведенными инженерными сетями и коммуникациями. В типовых проектах предусмотрено чердачное помещение со складной лестницей, которое можно переоборудовать под полноценную мансарду. 

Базовая предчистовая отделка включает в себя:

  • Бетонная стяжка пола.

  • Система отопления квартиры.

  • Подготовленные потолки.

  • Выровненные оштукатуренные стены.

  • Выровненные откосы, стеклопакеты с подоконниками.

  • Разводка электричества, сантехники. 

Коммуникации:

  • вода (скважина);

  • септик;

  • электричество. 

Цены и условия покупки

Застройщик предлагает 5 основных проектов домов. 

Дом 98 кв.м. «Классик изумрудный с террасой сбоку»

  • 3 спальни

  • кухня-гостиная

  • 1 этаж 

 Стоимость: от 6600000 рублей 

Дом 96 кв.м. «Классик изумрудный с террасой сзади»

  • 3 спальни

  • кухня-гостиная

  • 1 этаж 

Стоимость: от 6600000 рублей 

Дом 90 кв.м. «Комфорт изумрудный»

  • 3 спальни

  • кухня-гостиная

  • 1 этаж 

Стоимость: от 6600000 рублей 

Дом 104 кв.м. «Эркер изумрудный»

  • 3 спальни

  • кухня-гостиная

  • 1 этаж 

Стоимость: от 7200000 рублей 

Дом 110 кв.м. «Усадьба изумрудная»

  • 3 спальни

  • кухня-гостиная

  • 1 этаж 

Стоимость: от 7200000 рублей 

Способы оплаты:

  • 100%-ный единовременный платёж

  • ипотека

Чтобы узнать актуальную стоимость и наличие предложений на текущую дату, обращайтесь по бесплатному телефону +7 (800) 350-30-39 или пишите в WhatsApp по номеру +7 (988) 133-54-57. Наши специалисты по загородной недвижимости проконсультируют вас по актуальным ценам, организуют экскурсию в посёлок (в т.ч. удалённо, в формате видеосвязи), помогут определиться с проектом дома и забронировать понравившийся участок.

Гарантируем юридическую чистоту сделки, при необходимости поможем оформить ипотеку. 

Инфраструктура

Варениковская — станица с самодостаточной инфраструктурой. Здесь есть детские дошкольные и учебные заведения, предприятия с рабочими местами и многое другое. 

До Анапы, а соответственно ж/д вокзала, аэропорта, моря и городской инфраструктуры — около 40 км. От станицы можно в течение 40-60 минут добраться до Темрюка и Славянска на Кубани. 

Важные объекты инфраструктуры:

  • детские сады, школы;

  • поликлиника, медицинские центры и клиники, аптеки;

  • учреждения доп. образования, библиотеки, Дом культуры;

  • продуктовые и хозяйственные магазины (в том числе сетевые), торговые центры, сельхозрынок, пункты выдачи маркетплейсов;

  • МФЦ «Мои документы»;

  • кафе, столовые, пекарни;

  • почта;

  • отделения банков, банкоматы;

  • салоны бытовых услуг (парикмахерские, ателье и т.д);

  • станции техобслуживания, шиномонтаж, автомойки, АЗС;

  • пункт полиции;

  • пожарная часть

Таким образом, рядом с КП «Изумрудный» присутствует все, что необходимо для комфортной жизни. Немаловажно и то, что есть доступные варианты трудоустройства в самой станице и близлежащих населенных пунктах. 

Транспортная доступность и близость к морю

Из Варениковской удобно выезжать в сторону Крыма, Темрюка, Краснодара, Новороссийска, Анапы и по другим направлениям. Кстати, по новой трассе можно добраться до Краснодара всего за 1 час, а до Керчи — за 40 минут. Это расширяет туристические, карьерные и другие возможности резидентов жителей КП “Изумрудный». 

К станице прилегают асфальтированные автодороги 03К-010 (в сторону Анапы), 03К-009 (в сторону Темрюка, Крымска), Е289 — в Краснодар и на федеральную трассу. 

Широко развита сеть общественного и междугороднего транспорта. Есть прямые маршруты до Севастополя, Геленджика, Крымска, Анапы, Краснодара. Кроме того, в станице есть собственная ж/д станция, где останавливаются пригородные и междугородние поезда. 

Если заинтересовались КП «Изумрудный», мы предоставим всю необходимую информацию и поможем с проведением сделки. Для записи на консультацию звоните по бесплатному телефону +7 (800) 350-30-39 или пишите в WhatsApp по номеру +7 (988) 133-54-57. И пусть ваша мечта жить на юге обязательно осуществится!

 

Получите больше информации, позвонив по номеру телефона +7 (800) 350-30-39 или пишите в WhatsApp по номеру +7 (988) 133-54-57. Звонок бесплатный!
Поделиться в соц.сетях