Эксперт+
Забота
Возведение жилого комплекса бизнес-класса "Хозяин морей" стартовало летом 2024 года в ближайшем пригороде Анапы - посёлке Супсех (в квартале улиц Аэродромная, Керченская, Конституции и Весенняя), в рамках проекта комплексного развития территории.
Месторасположение ЖК вплотную примыкает к городской черте, имея общую границу с наиболее активно развивающимся микрорайоном "Горгиппия".
Строительство комплекса разделено на 4 этапа. Срок сдачи первой и второй очереди – II квартал 2027 года. Согласно проекту, ЖК "Хозяин морей" будет состоять из 9 литеров этажностью от 8 до 12 этажей. Многие квартиры имеют отличные видовые характеристики - но море и горы.
Комплекс обладает собственной социальной, коммерческой и дорожной инфраструктурой, о чём я подробнее расскажу ниже.
Здесь реализован принцип "двор без машин". Дворовое пространство находится под круглосуточным видеонаблюдением и включает в себя:

На всей территории комплекса создана безбарьерная среда, что особенно актуально для маломобильных групп населения. Кроме того, для удобства перемещения все подъезды в комплексе - сквозные.
Подземный паркинг комплекса рассчитан на 1491 машино-место. Также предусмотрена наземная "гостевая" парковка вдоль проездов. Для электромобилей будут оборудованы зарядные станции.
Земельные участки, на которых располагается жилой комплекс:
Вид разрешённого использования земельных участков - "многоэтажная жилая застройка".
Строительство ЖК "Хозяин морей" ведётся согласно 214-ФЗ, с применением эскроу-счетов, т.е. деньги дольщиков станут доступными для застройщика только после ввода объекта в эксплуатацию. Проектное финансирование стройки осуществляет ПАО "Сбербанк".
Стоимость квартир на старте продаж, по состоянию на август 2024 года:
Стоимость машино-мест в подземном паркинге - от 100 000 до 115 000 руб./кв.м. (от 1 325 000 до 1 523 750 рублей).
Как всегда, самую свежую информацию о ценах на квартиры, машино-места и коммерческие помещения в ЖК "Хозяин морей", а также о способах покупки и акциях от застройщика вы можете узнать у наших менеджеров. Позвоните по бесплатному телефону +7 (800) 350-30-39 или напишите в WhatsApp на номер +7 (988) 133-54-57.
При необходимости вы можете воспользоваться услугами юриста и ипотечного брокера. Кроме того, мы поможем вам провести дистанционную сделку, если нет возможности личного присутствия.
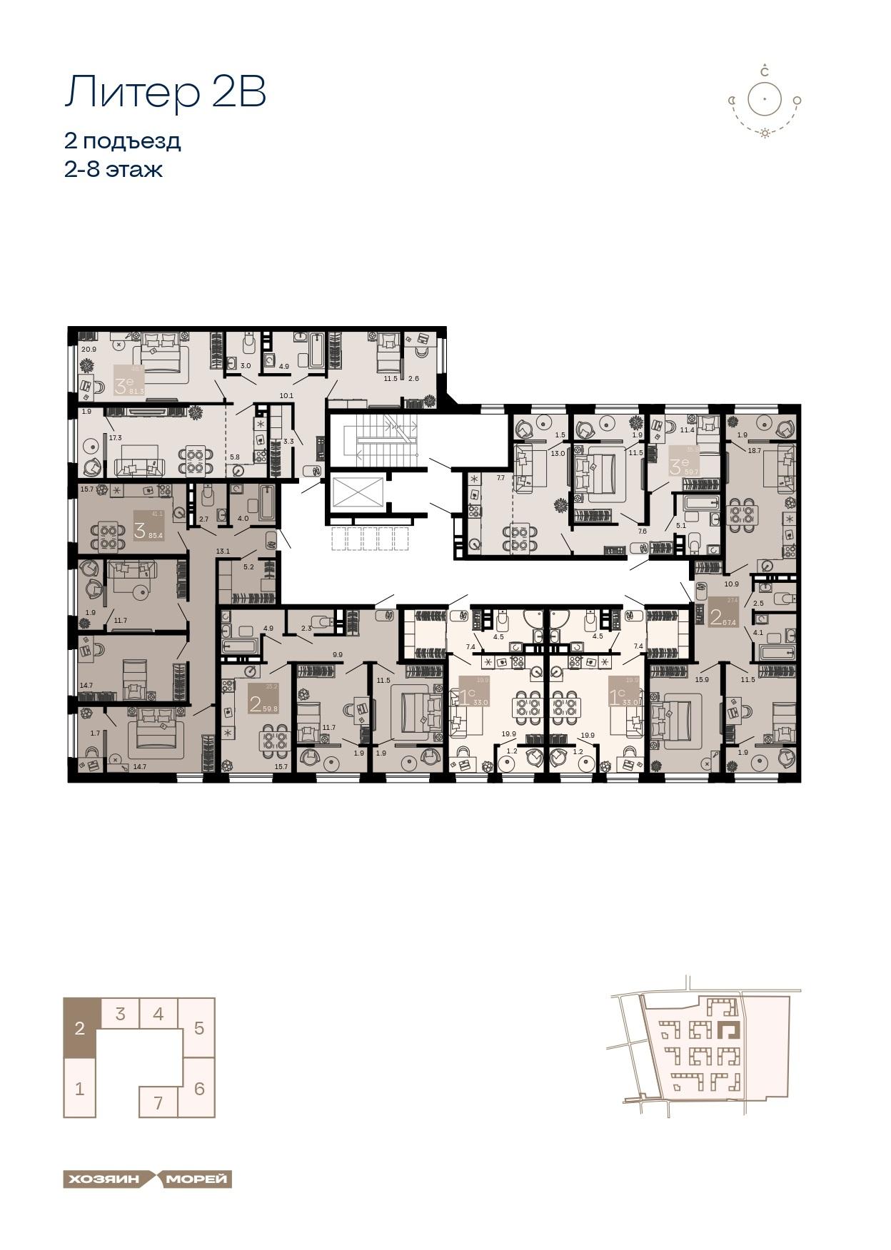
"Хозяин морей" - это 9 жилых многоподъездных литеров переменной этажности (8 и 12 этажей + один этаж подземный).
При проектировании комплекса было решено прибегнуть к современным стилистическим приёмам скандинавской архитектуры, для которых характерны ассиметричные, раскрашенные в яркие цвета, фасады, скатные крыши и ночная эффектная подсветка.
Панорамные окна и открытые балконы обеспечивают достаточную инсоляцию помещений.
Специальные боксы для внешних блоков сплит-систем призваны сохранить стилистические особенности жилых зданий после начала их эксплуатации.
I очередь (литер 1) рассчитана на 373 квартиры:
II очередь (литеры 2, 3 и 4) рассчитана на 783 квартиры:
Итого в первых очередях строительства будет сдано в эксплуатацию 1156 квартир (на момент написания данной статьи в августе 2024 года документации на III и IV очереди строительства в открытом доступе нет).
Высота потолков - от 2,7 до 3 метров.
В зависимости от планировки подъезда, на этаже размещаются от 3 до 7 квартир.
В 8-этажных литерах установлены по одному грузопассажирскому лифту в каждом подъезде, в 12-этажных - 2 лифта (пассажирский и грузопассажирский).
Строительство "Хозяин морей" осуществляется по монолитно-каркасной технологии.
Квартиры сдаются в предчистовой отделке "white box":
Класс энергоэффективности: В (высокий).
ЖК "Хозяин морей" подключён к центральным коммуникациям (электричество, отопление, водоснабжение, водоотведение).
За доступ в интернет и ТВ-сигнал отвечает ПАО "Ростелеком".
Строительством ЖК "Хозяин морей" занимается ООО "Специализированный Застройщик "АнапаСтройПроект" (ИНН 2312311083).
Юридический адрес: Краснодарский край, г. Краснодар, тер. Пашковский Жилой Массив, ул. им. Фадеева, д. 212, помещ. 12.
Дата регистрации - 01.07.2022 г.
Директор - Инюшев Максим Николаевич.
ООО "СЗ "АнапаСтройПроект" состоит в структуре ГК "ТОЧНО" - федерального девелопера, входящего в ТОП-10 крупнейших застройщиков России и в список системообразующих предприятий страны. Компания основана в 2013 году, а на сегодняшний день насчитывает около 2500 сотрудников и обладает парком строительной техники численностью более 200 единиц.
ГК "ТОЧНО" реализует свои проекты в 5 регионах (Краснодарский край, Ростовская и Белгородская области, Крым, Татарстан) и 12 городах (Краснодар, Новороссийск, Туапсе, Армавир, Тихорецк, Анапа, Сочи, Ростов-на-Дону, Белгород, Ялта, Казань и Зеленодольск). Среди наиболее известных проектов в Краснодаре - ЖК "Тургенев", "Фамилия", "Сказка Град" и другие.
Общая площадь проектов - более 3 млн. кв.м. жилой и коммерческой недвижимости.
Разрешительная и строительная документация ЖК "Хозяин морей":
Разрешение на строительство (I очередь)
Разрешение на строительство (II очередь)
Проектная декларация (I очередь)
Проектная декларация (II очередь)
Экспертиза проектной документации (I очередь)
Экспертиза проектной документации (II очередь)
Градостроительный план земельного участка (I очередь)
Градостроительный план земельного участка (II очередь)
Схема планировочной организации земельного участка (I очередь)
Схема планировочной организации земельного участка (II очередь)
Казалось бы, что жильцам ЖК "Хозяин морей" вполне хватило инфраструктуры соседнего микрорайона "Горгиппия". Однако статус проекта комплексного развития территории (КРТ) накладывает на застройщика обязанность по формированию собственной инфраструктуры комплекса.
Именно в рамках КРТ, параллельно со строительством жилых зданий, здесь будут возведены два детских сада (вместимостью по 250 мест каждый) и общеобразовательная школа, рассчитанная на 1100 учащихся. Это позволит местным ребятам добираться до места дневного пребывания и учёбы безопасно и за считанные минуты.
Кроме того, ЖК будет полностью обеспечен коммерческими площадями, которые разместятся как на первых этажах жилых корпусов, так и в отдельно стоящих постройках. Магазины с товарами первой необходимости, аптеки, пункты выдачи маркетплейсов, салоны бытовых услуг, медицинский центр, спортзал, заведения общепита и многое другое - всё это будет в пределах шаговой доступности.
Запроектированы широкие внутренние проезды и достаточное количество парковочных мест (наземных и подземных). Территория комплекса будет закрытой для проезда постороннего автотранспорта.
Что касается "внешней" инфраструктуры, то с ней тоже всё в порядке - благодаря расположенным рядом уже упомянутого мной микрорайону "Горгиппия" и ЖК "Южный квартал":
Идёт активное строительство Черноморского (Императорского) парка с богатым озеленением, фонтанами и смотровой площадкой.
ЖК "Хозяин морей" имеет хорошую транспортную доступность. По улице Ленина можно быстро добраться до центральной части Анапы (в т.ч. на общественном транспорте). По Супсехскому шоссе - удобно выехать в район Южного рынка и к ТРЦ "Красная Площадь", а также на галечные пляжи (через Варваровку и Сукко) и на федеральную трассу "Новороссийск-Керчь" (через Гай-Кодзор).
По показателю доступности пляжей ЖК "Хозяин морей", честно говоря, находится далеко не на лидирующих позициях. До ближайшего безопасного спуска к морю - 4 км. (это галечный пляж в районе ул. 40 лет Победы, рядом с новой набережной). До Центрального (песчаного) пляжа - около 5,5 км. Пешком преодолеть такое расстояние будет сложно даже молодому здоровому человеку.
Видеообзор ЖК "Хозяин морей":
Начало строительства ЖК "Хозяин морей" - отличная новость для тех, кто хотел бы пользоваться инфраструктурой микрорайона "Горгиппия", но при этом проживать в комплексе бизнес-класса (похожее сочетание можно найти в ЖК "Флагман Горгиппии", но там предложение ограничено).
Данная локация стремительно приобретает популярность как среди переезжающих на ПМЖ в Анапу из других городов и регионов, так и среди местных жителей. Застройщик явно оценил эти тенденции и подготовил, на мой взгляд, достойный проект.
Получить дополнительную информацию о комплексе вы можете в ходе личной консультации со мной или моими сотрудниками. Записывайтесь по бесплатному телефону +7 (800) 350-30-39 или напишите в WhatsApp на номер +7 (988) 133-54-57. Обращайтесь, с нами ваша мечта переехать жить к морю обязательно исполнится!